こんにちわ。ペンペンです(●’◡’●)
この記事は一条工務店で家を建てたい!と思っている方にまず読んでいただき、
【一条で出来る事・出来ない事】【自分の理想の家に合う・合わない】
をしっかりと理解し、一条工務店での理想のお家を目指しましょう!
我が家の問題点は、狭い土地でも理想の一条ハウスを建てる事が出来るのか。ということでした。
「一条工務店って性能はいいけど、狭小地でも本当に快適な家が建てられるの?」
「間取りの自由度が低いって聞くけど、うちの土地で大丈夫?」
特に関東の都市部で家づくりを考えている方なら、こんな不安を抱えたことがあるのではないでしょうか。
私も同じ悩みを持っていました。土地は22坪、さらに変形地なので有効面積は20坪程度。
正直、家づくりのハードルはとても高かったです。
でも、結論から言うと「狭小地でも一条工務店で快適な家は建てられる」
このブログでは、私が間取り作成だけで1年半以上かけた実際の体験をもとに、
- 狭小地でも一条工務店を選んだ理由
- 間取りの工夫と失敗しないポイント
- 狭小地だから諦めた間取り・設備
を、わかりやすく紹介します。
あなたの不安を解消し、ぜひ一条工務店で快適な家を建ててくださいね。
狭小地でも一条工務店を選んだ理由
我が家は土地22坪+変形地。有効面積は約20坪しかありません。
さらに北側斜線の影響(法律上)で3階建て不可、選択肢は2階建てのみ。
「この条件で一条工務店は無理だろう」と、住宅展示場や地方工務店を7社も回りました。
住宅相談所にも何度も電話しました。
どこに相談しても言われたのは
「この土地では間取りの自由度が低い一条工務店では建てない方がいい」。
正直、諦めかけました。でも、性能面でどうしても一条工務店が諦めきれなかったんです。
最後にダメ元で訪れた一条工務店の展示場で、営業さんがこう言いました。
「全然建てられます。もっと小さい土地も経験あります!」
その言葉を信じて契約。ここからが本当の戦いの始まりでした。
また、展示場に足を運ぶ前に紹介特典を絶対に活用しましょう。

私は紹介特典を知らずに契約してしまい大損してしまったので
絶対忘れないようにしてね!
最大のメリット3つもあるよ!
- 最大35万円相当が無料に!
- 信頼できる営業さんが担当になる!
- 展示場でクオカードがもらえる!
なんと言っても床暖房!家は性能!
一条工務店の最大のメリットである床暖房が標準装備である事です。
年中暖かく、お風呂場まで床暖房設置してあるため老後のヒートショックも安心!
これなしでは一条工務店は語れないといっても良いでしょう!

本当に一年中暖かい!!子供も小さいのでほんとに助かった!快適🎉
けど真冬に半袖って違和感ww、夫はタンクトップの日もwwww
よく一般的に使用されている床暖房のイメージは寒い時だけスイッチを入れてその場しのぎで使用するイメージをお持ちかと思います。
一条の床暖房はそもそも一度スイッチを入れたらは春までつけっぱなしと言う点にまず驚きました!
おかげで冬場は24時間快適に過ごせます。
また、お湯の温度も26℃程度とじんわりと足元から体の芯までぽかぽかになります。
子供も小さいため「ハイハイで床が冷たい!」って事もなく本当に安心でした。
高気密・高断熱の家
床暖房を最大限に活用するために必要なことが高気密・高断熱!!
一条はトップクラスの断熱性能を誇ります。

ちなみにペンペンのお家は【UA値:0.43】【C値:0.46】まぁまぁ優秀!
数値が小さい方が良いよ!魔法瓶のような家を目指そう!!
引用元:一条工務店(外内ダブル断熱構法)
※上記はグラン・スマート、アイ・スマート(枠組)の性能です
グランセゾン(軸組)の断熱性能は多少劣りますが十分な性能といえるでしょう。
他ハウスメーカーだと全窓をトリプル樹脂サッシ窓に変更するだけで+200万円以上する所もありました。一条は標準でこの性能!コスパはかなり優秀ですね!
一条工務店は断熱性能でも他とは一線を画す程圧倒的なものがあります。
私は家を建てる際に最も重視した点が気密性・断熱性でした。
子育て世代・老後の事を考えるととても大事になってきますよね(❁´◡`❁)

20年後・50年後も快適に暮らせるお家が作りたいですね!
標準設備が充実
一条工務店では家具や設備がほとんどオリジナルの商品です。
「見た目が全部一緒だから嫌だ!」「一条工務店で建て家は同じにしか見えない」
なんて声をよくネット上で見かけますが、なんて贅沢なの!ww
一条工務店はオリジナルの設備という特権を活かしてお客様の声を反映し、常に設備能力が向上していますので使い勝手はとても良いです。
また、収納力の面でもかなり大容量のため狭小地で家を建てた我が家にはもってこいの設備でした。
私的には見た目も気に入っています。
引用元:一条工務店(設備・仕様)
※すべてが標準で採用可能です(一部:キッチンナイトストーン色はオプション)
機能面では申し分ない使い勝手です。
間取り作成の工夫・苦労
間取りが完成するまでの流れ
狭小地での間取り作成は、合格まで長期で戦う「覚悟」が必要です。
一条工務店では施主自身が「一条ルール」を理解し、提案する必要があります。

えっ!?間取りは設計士が作ってくれるんでしょ!?
と、思いますよね?
もちろん一般的な形で建築可能であれば、間取り作成にあたり設計士の常識の範囲内で設計可能ですが、我が家は狭小・変形地のため設計困難な箇所が多々ありました。
設計士も一条ルールをすべて把握している訳ではありませんので
【自分で調べて提案する】事がポイントとなります。
一般的な家庭では、間取りの打ち合わせは計2〜3回ほどで終わります。
なんと!我が家は打合せ8回以上、1年6カ月かけてようやく完成までたどり着きました。
※設計士とは常にメールでやり取りをしていました

本当に大変でした。笑
一番嫌だった事は設計士は大丈夫!だとしても海外の構造検査で却下。
【なんで~!!💦】ってなる。そんな事が何度もありました😵
なぜこんなに時間がかかったのか?理由は「一条ルール」にあります。
- 設計士とOKになった間取りでも、海外の構造検討部署で再審査 → 不合格ならやり直し
- 最終審査は海外(フィリピン)で実施するため解答を得られるまで平均2週間程度は待たないといけない
- 狭小地だと制約が多く、希望通りにいかないことが多いため一つ一つの間取りの調整に時間をようするのはとても無駄に感じる


一条工務店は間取り作成~審査~合格までがとても時間を要します。
すぐに返答が来て、すぐ修正!が出来ないのはデメリットですね。
この過程で学んだのは、
「狭小地で一条工務店を選ぶなら、根気と工夫が必須」ということ。
特に心がけていたのは嫌われてもいいから設計士に質問攻めする事!ww
大切な自分のお家です。後悔のないようにしたいものですね。
ただ、一条工務店のメリットとしては打合せ回数に限度がないという事。
これは我が家にとってはかなり重要でした。
我が家の打合せ回数は全部含めて10回以上!
有名なハウスメーカーだと【アイ工務店:設計士との打ち合わせ2回まで】等の制約があります。
そういった面だと一条工務店は狭小地で打合せ回数が多くなる・またはこだわりが強い方にとってはメリットと言えるでしょう。
間取りの自由度を選ぶならグランセゾン(軸組)が最善
一条工務店には複数のグレードがあります。
人気が高いのは
- グランスマート(枠組み工法)
- アイスマート(枠組み工法)
- グランセゾン(軸組み工法)
性能・設備重視ならグランスマートが最上級ですが、狭小地では選べない場合があります。
我が家もそうでした。選べたのはグランセゾンのみ。
理由は、軸組み工法の方が間取りに融通が利くからです。
詳細は別記事にて紹介します
また、グランスマート等の枠組みはW断熱となるので壁厚が厚くなり近隣との境界が狭くなるというのも一つの理由でした。
グレードの選択は最初に妥協したポイントです。
狭小地で絶対やるべき工夫(境界から50cmルール)

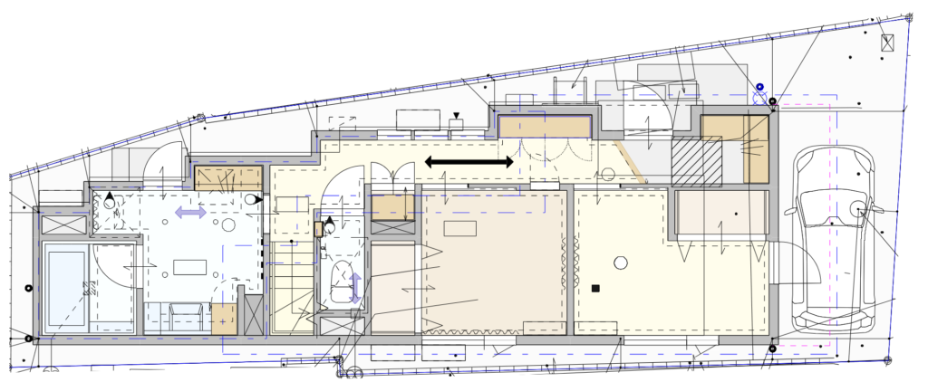
みて分かる通り我が家は敷地ギリギリまで建築しなければ家っとして成立しませんでした。
一番境界からの距離が近いところで20cmの所があります。(ほっそぉ~ww)
境界からの距離が民法にて制限されている事をご存じでしょうか?
建物を築造するには、境界線から五十センチメートル以上の距離を保たなければならない。
(民法第234条)
との記載があります。建物を建築するうえで重要な事項となります。
もし違反した場合、隣地から中止・変更の請求を受ける可能性があります。
とは言っても解決策はあります。その方法とは?
隣家の方に承諾書のサインをいただく事!
これをしないと後々苦情が入った際に証明するものがなく、不利となってしまいます。

我が家は隣家4ヵ所の承諾が必要でした。
全て承諾いただけるまで3ヵ月程かかりました。
承諾してくださった隣家の皆さんありがとう!
狭小地だから諦めた間取り・設備
もちろん理想の家を建てるためにあらゆる面で工夫をしましたがそれでも狭小地というだけで妥協せざる負えない場面も多くありました。
その中でも代表的なものを2つ紹介します。
・2Fリビング
・オール電化が不可
2Fリビングの理由
もちろん希望は1Fリビングでした。
- 玄関からのアクセス(重量物・食品の運搬の手間)
- 階段の使用頻度が減る(主に1Fで過ごすことが出来る)
- 家族が顔を合わせて生活できる(コミュニケーションが取れる)
上記の理由からも1Fリビングにする予定でしたが、
何度も打合せを繰り返す内に実現が出来ない事が分かりました。
当時の間取りが以下の通りです。

一見良い感じに収まっているように見えますが、
この間取りにて打合せ時は【OK】だったが、海外の検査場にて【不合格】となった。
理由としては、1Fリビングに耐力壁をが3マス分足りていない。。。。

耐震等級3以上をクリアするためには
リビングにあと3マス分の耐力壁を設けないといけません!

耐力壁3マス分!?
耐震等級が3以下になっても構わないのでこのままでお願いします。

会社の方針上それは出来ません。
耐震等級3以上は絶対条件です!!

そんなぁ~ >﹏<
それはもうリビングとしての機能を果たせません!!
イヤだぁ~~~~~~!!!てなったww
【一条工務店は耐震等級3以上を絶対確保する!】
この条件は施主がいくらお願いしても覆ることはありません。
一条工務店のこだわりである事は性能上メリットではありますが、狭小地で家を建てる私からしたらデメリットでもあります。
その他にも小さい理由は多く、
・トイレ、部屋に行くのにキッチンを通らないといけない
・カップボードが小さい、風呂が小さい
等々の理由から2Fリビングとなりました。
オール電化に出来なかった
もともとはオール電化の予定でしたが、狭小地という理由から断念せざる負えませんでした。

画像から分かるように隣地との境界がほとんどありません。
この隙間にエコキュートを設置することは出来ず、ガス給湯器の導入が必要となりました。

出来ないものはしょうがない!
どうせガスをひくならカンタ君を入れよう!!となりました。
結果的には家事楽になったから良かった!ヾ(≧▽≦*)o
【まとめ】狭小地でも理想の一条ハウスは建てられる!
- 狭小地・変形地でも一条工務店で理想の家は建つ!
一条工務店は「間取り自由度が低い」と言われますが、工夫次第で快適な家は建てられます。 - 覚悟と根気が必要
間取り打ち合わせは通常より長期戦になる可能性大。私の場合は1年半かかりました。 - グレード選択に制約あり
狭小地では最上級グレードが選べない場合も。性能と間取りのバランスを考えた選択が重要です。 - 間取りや設備で諦める事も多々ある
もちろん妥協する場面も多くあるかと思いますが、工夫することで理想の家を実現しましょう。







